North End Road, Yapton

£2,250 PCM

or call us on:

01903 770095
Share

Property Description

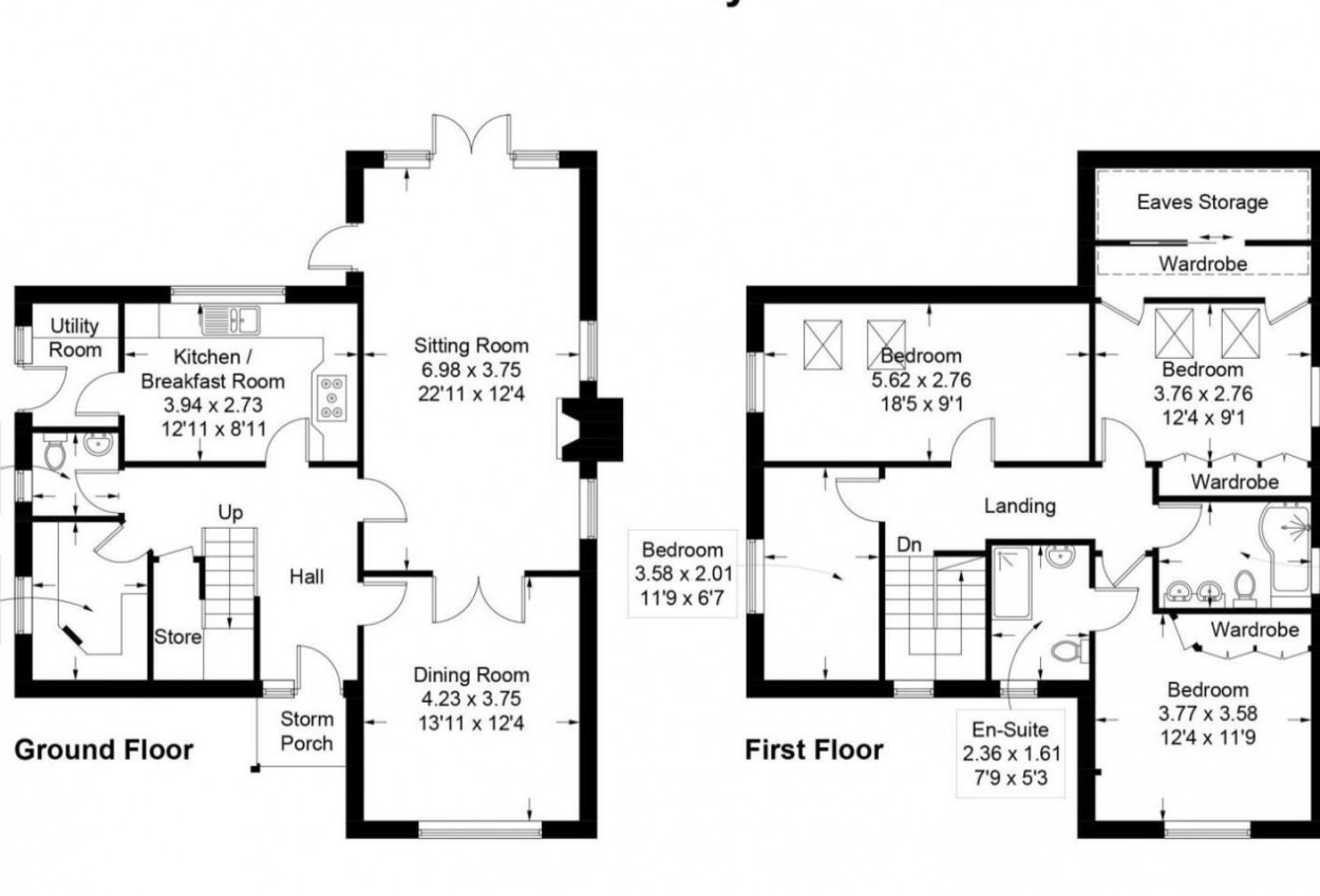
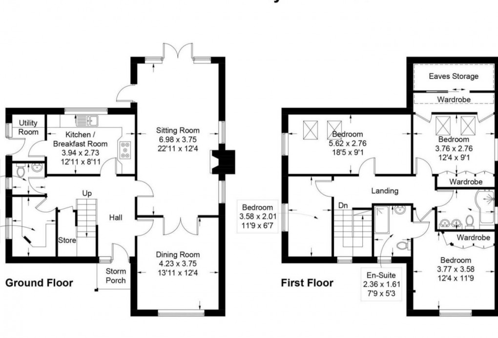
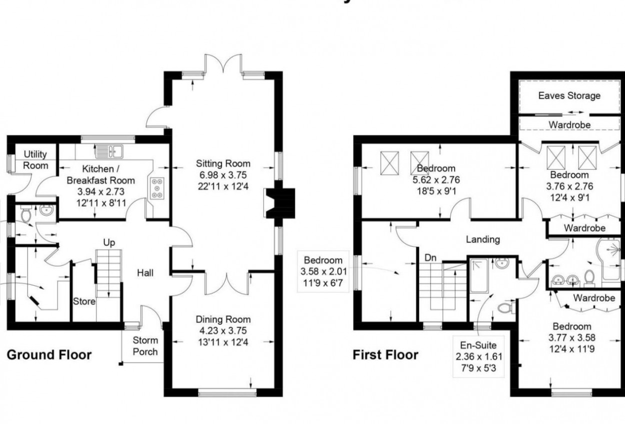
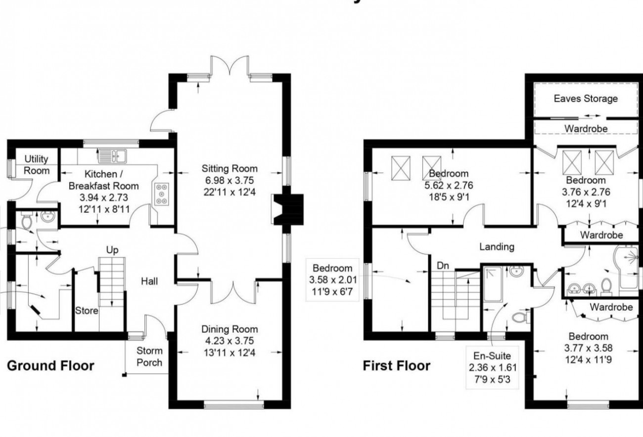
A Substantial Four Bedroom Property | Village Location | Secure Gated Driveway Large Enough For Several Vehicles | Detached Double Garage | Large Lounge With French Doors Leading To The Rear Garden | Separate Dining Room | Modern Fitted Kitchen | Separate Utility Room | Study | Ground Floor WC | Airy Entrance Hallway | Four Double Bedrooms | Master Bedroom With A Modern Fitted En-Suite | Good Sized Family Bathroom | Plenty Of Storage | Gas Central Heating | Enclosed Rear Garden With Side Access's | Available Now

Book a viewing

Pick a Day

  • This Week
  • Next Week
  • In a Fortnight

Select a Time

Your Explicit Consent

You must be 18 years or older to register for our property matching service through this website ("Service").

From time to time we will send you information about properties that we feel may be of interest to you and/or provide you with information about our valuation services.

If you would like to receive information from us, please indicate this by selecting the appropriate box(es) below:

Our Privacy Policy and Notice describes how we use your data, who we might share it with and what rights you have.

This site is protected by reCAPTCHA and the Google Privacy Policy and Terms of Service apply.

Location

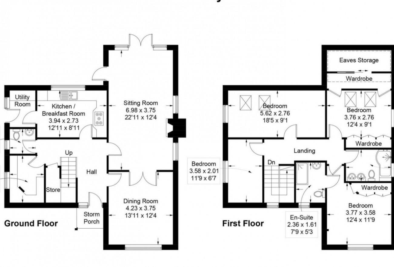
Floorplan

Property Floorplan

Floorplan for North End Road, Yapton

EPC

EPC

Energy Performance Certificate for North End Road, Yapton